空家バンク
大島-75周防大島町大字西屋代 木造二階建
周防大島で味わう 里の暮らし
売買
物件詳細
- 構造
- 木造
- 屋根
- 瓦
- 規模
- 二階建
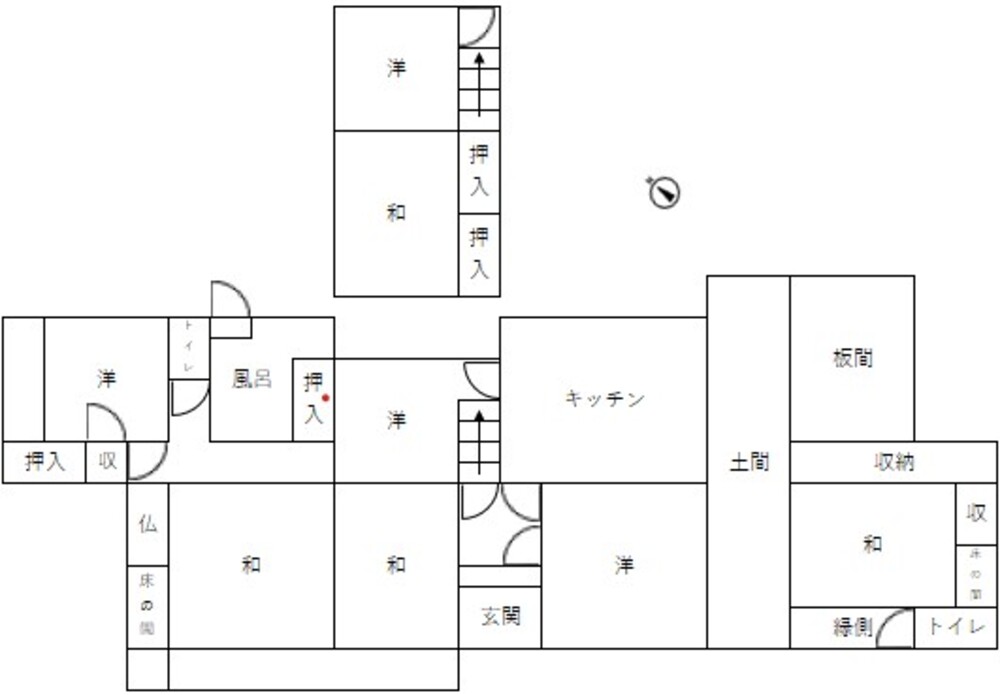
- 間取り
- 8DK
- 床面積
- 193.78㎡
- 築年数
- 昭和43年
- 浴室
- 灯油
- 水道
- 上水道
- 駐車場
- 2台可
- トイレ
- 簡易水洗
- ペット
- -
- 価格
- 160万円
- 条件等
- 現況渡し、農地・山林付き
屋代の山間部にある物件です。田んぼと畑がついており、農のある暮らしを始めるのにいかがでしょうか。
町営バス砂田停留所より徒歩9分(650m)
間取り・地図

売買
屋代の山間部にある物件です。田んぼと畑がついており、農のある暮らしを始めるのにいかがでしょうか。
町営バス砂田停留所より徒歩9分(650m)
